- ここがポイント
 - 
                                    	

伊豆石の浴室で温泉を楽しめます
 - 
                                    	

平坦な広い庭で菜園やガーデニングを楽しめます
 
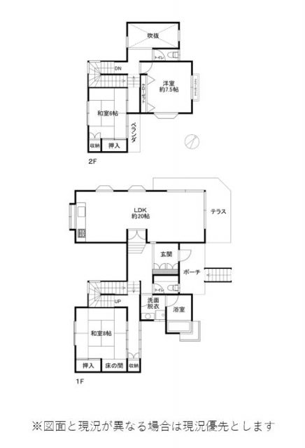
- 玄関
 
- 玄関(吹抜け)
 
- 和室1
 
- 和室2
 
- 洋室
 
- LDK1
 
- LDK2
 
- LDK3
 
- キッチン
 
- 洗面脱衣
 
- 浴室
 
- トイレ
 
- テラス
 
- 庭1
 
- 庭2
 
- 外観1
 
- 外観2
 
					販売価格 : 1,280万円
| 所在地 | 静岡県伊東市富戸 | 用途地域 | 無指定 | 
|---|---|---|---|
| 交通 | 伊豆急行線/伊豆高原駅(約6.2km) | 建ぺい率 | 20% | 
| 土地面積 | 505㎡ / 152.76坪 | 容積率 | 60% | 
| 地目 | 山林 | その他 法令上の制限  | 
                              自然公園法・宅地造成等規制法・県条例 | 
| 建物面積 | 118.41㎡ / 35.81坪 | 設備 | 東京電力・私営水道・個別浄化槽・個別LPG | 
| 間取り | 3LDK | 備考 | 分譲地規制有 温泉権利付 温泉名義変更料:200,000円+税 水道名義変更料:30,000円+税 自治会費:12,000円/年(個人) 駐車場2台可(カーポート有)  | 
                          
| 構造規模 | 木造スレート葺2階建 | ||
| 築年月 | 1990年2月 | ||
| 都市計画 | 非線引 | 取引態様 | 媒介 | 
					





            

