販売価格 : 980万円
| 所在地 | 静岡県伊東市富戸 | 用途地域 | 無指定 |
|---|---|---|---|
| 交通 | 伊豆急行線/伊豆高原駅(約4.1km) | 建ぺい率 | 20% |
| 土地面積 | 706㎡ / 213.56坪 | 容積率 | 60% |
| 地目 | 原野 | その他 法令上の制限 |
自然公園法・宅地造成等規制法・県条例・屋外広告物特別規制区域・盛土・民泊条例 |
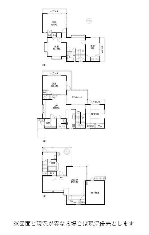
| 建物面積 | 90.27㎡ / 27.3坪 | 設備 | 東京電力・私営水道・個別浄化槽・個別LPG |
| 間取り | 5LLDK | 備考 | 分譲地規制有 土地2筆 水道名義変更料:30,000円+税 自治会費:12,000円/年(個人) 増築部分未登記 契約不適合責任免責 再建築時分譲地規制遵守 増築部分未登記 3階・1階居間・地下物置未登記 木造スレート葺:62.10㎡ 鉄筋コンクリート造:55.48㎡ 建物要修繕 ※古家付土地扱い |
| 構造規模 | 木造スレート葺2階建(現況3階建) | ||
| 築年月 | 1972年10月(1993年7月増改築) | ||
| 都市計画 | 非線引 | 取引態様 | 媒介 |










