- ここがポイント
-

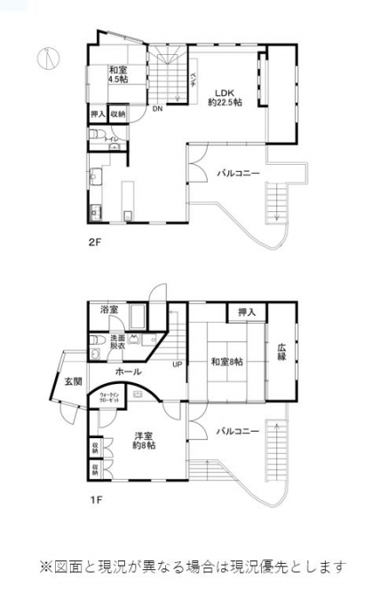
陽当り良好な2階リビング
-

平坦な庭で菜園やガーデニングを楽しめます
- 玄関

- 和室1

- 和室2

- 洋室1

- 洋室2

- 階段

- 和室3

- LDK1

- LDK2

- キッチン

- 洗面・トイレ

- 浴室

- 2Fトイレ

- 庭1

- 庭2

- 外観1

- 外観2

- 駐車スペース(2台可)

販売価格 : 2,130万円
| 所在地 | 静岡県伊東市富戸 | 用途地域 | 無指定 |
|---|---|---|---|
| 交通 | 伊豆急行線/伊豆高原駅(約3.7km) | 建ぺい率 | 20% |
| 土地面積 | 429㎡ / 129.77坪 | 容積率 | 60% |
| 地目 | 宅地 | その他 法令上の制限 |
自然公園法・宅地造成等規制法・県条例 |
| 建物面積 | 124.42㎡ / 37.63坪 | 設備 | 東京電力・私営水道・個別浄化槽・個別LPG |
| 間取り | 3SLDK | 備考 | 分譲地規制有 温泉引込可 水道名義変更料:30,000円+税 自治会費:12,000円/年(個人) 2024年12月内外装リフォーム済 外壁屋根塗装、バルコニー補修、床・クロス張替、 玄関ドア取替、窓サッシ交換、浴槽・トイレ交換等 駐車場2台可 |
| 構造規模 | 木造スレート葺2階建 | ||
| 築年月 | 1987年1月 | ||
| 都市計画 | 非線引 | 取引態様 | 媒介 |








