- ここがポイント
-

伊豆石の浴室で温泉を楽しめます
-

広々としたウッドデッキ
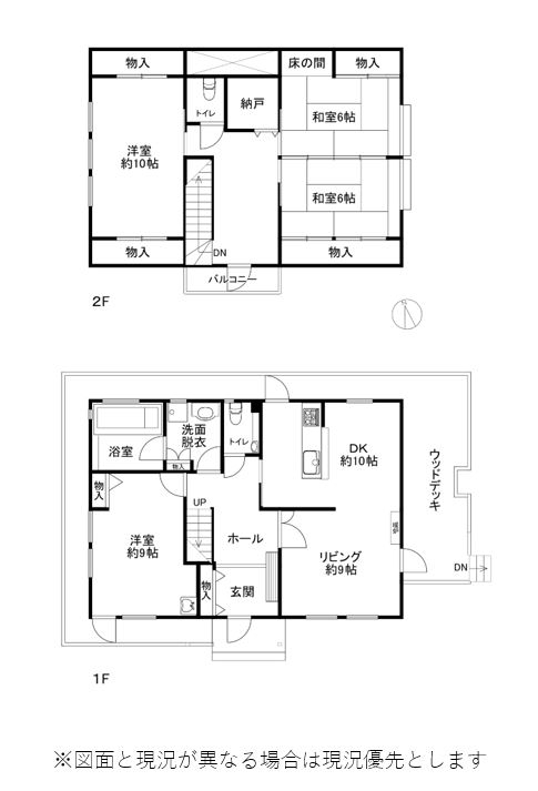
- 玄関

- 洋室1

- 2Fホール

- 和室1

- 和室2

- 洋室2

- リビング

- ダイニング

- キッチン

- 洗面脱衣

- 浴室

- トイレ

- バルコニー

- ウッドデッキ

- 庭

- 外観

販売価格 : 2,500万円
| 所在地 | 静岡県伊東市富戸 | 用途地域 | 無指定 |
|---|---|---|---|
| 交通 | 伊豆急行線/伊豆高原駅(約5.4km) | 建ぺい率 | 20% |
| 土地面積 | 396.69㎡ / 119.99坪 | 容積率 | 60% |
| 地目 | 宅地 | その他 法令上の制限 |
自然公園法・宅地造成等規制法・県条例・盛土・民泊条例 |
| 建物面積 | 148㎡ / 44.77坪 | 設備 | 東京電力・私営水道・個別浄化槽・個別LPG |
| 間取り | 4SLDK | 備考 | 分譲地規制有 温泉権利付(2025.8.20迄)※廃止中 温泉名義変更料:200,000円+税 水道名義変更料:30,000円+税 自治会費:12,000円/年(個人) 建物要修繕(雨浸水有/バルコニー、温室・物置有/扉破損) 暖炉:電気式(煙突はダミー) 駐車場2台可 |
| 構造規模 | 木造セメント瓦葺2階建 | ||
| 築年月 | 2003年11月 | ||
| 都市計画 | 非線引 | 取引態様 | 媒介 |
当物件は契約済です。キャンセル発生後の紹介とさせて頂きます。






大室高原別荘地


