- ここがポイント
-

平坦なお庭で菜園・ガーデニングを楽しめます
-

広い浴室で温泉を楽しめます
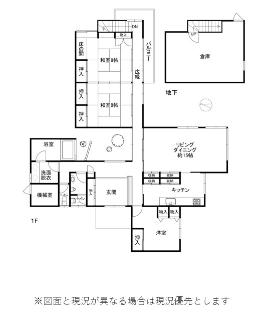
- 玄関1

- 玄関2

- 和室1

- 和室2

- 和室3

- 和室4

- 洋室1

- 洋室2

- リビングダイニング1

- リビングダイニング2

- キッチン

- 洗面脱衣

- 浴室

- トイレ

- 地下倉庫

- 坪庭

- 庭

- 外観(庭)

- 外観(駐車スペース)

販売価格 : 3,300万円
| 所在地 | 静岡県伊東市八幡野 | 用途地域 | 無指定 |
|---|---|---|---|
| 交通 | 伊豆急行線/伊豆高原駅(約2km) | 建ぺい率 | 20% |
| 土地面積 | 1,104㎡ / 333.96坪 | 容積率 | 60% |
| 地目 | 山林 | その他 法令上の制限 |
自然公園法・宅地造成等規制法・県条例 |
| 建物面積 | 180.36㎡ / 54.55坪 | 設備 | 東京電力・公営水道・集中浄化槽・個別LPG |
| 間取り | 3LDK+倉庫 | 備考 | 分譲地規制有 温泉権利付 温泉名義変更料:250,000円+税 分譲地管理共益費:66,600円+税/年 汚水処理施設管理費:4,120円/月 駐車場1台可 |
| 構造規模 | 木・鉄筋コンクリート造地下1階付平家建 | ||
| 築年月 | 1980年9月 | ||
| 都市計画 | 非線引 | 取引態様 | 媒介 |








