- ここがポイント
-

バルコニーから海を一望
-

温泉を楽しめます
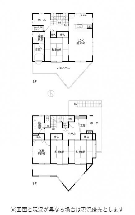
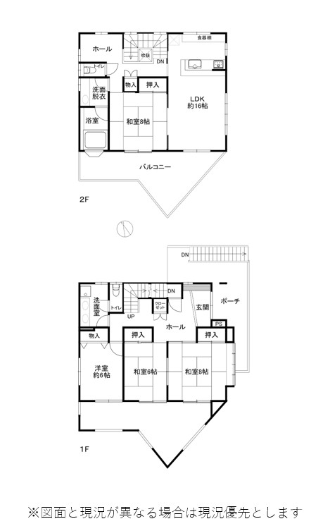
- 1F和室

- 浴室1

- 2F和室

- リビングダイニング

- ダイニングキッチン

- キッチン1

- キッチン2

- 洗面

- 洗面脱衣

- 浴室2

- トイレ

- 地下

- テラス

- 眺望

販売価格 : 3,650万円
| 所在地 | 静岡県伊東市富戸 | 用途地域 | 無指定 |
|---|---|---|---|
| 交通 | 伊豆急行線/城ヶ崎海岸駅(約0.9km) | 建ぺい率 | 20% |
| 土地面積 | 505㎡ / 152.76坪 | 容積率 | 60% |
| 地目 | 山林 | その他 法令上の制限 |
宅地造成等規制法・自然公園法・県条例 |
| 建物面積 | 195.34㎡ / 59.09坪 | 設備 | 東京電力・私営水道・個別浄化槽・個別LPG |
| 間取り | 4LDK | 備考 | 分譲地規制有 温泉権利付(2030.10.14迄) 温泉名義変更料:200,000円+税 親和会費:19,200円/年(個人) 駐車場1台可 |
| 構造規模 | 木・鉄筋コンクリート造瓦葺地下1階付2階建 | ||
| 築年月 | 2005年8月 | ||
| 都市計画 | 非線引 | 取引態様 | 媒介 |








