- ここがポイント
-

2階より海を望みます
-

玄関横のサンテラス
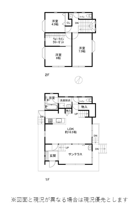
- 玄関(サンテラス)

- サンテラス

- LDK1

- LDK2

- LDK3

- キッチン

- 階段

- 洋室1

- 洋室2

- 洋室3

- 洋室4

- 洋室5

- 洋室6

- 洗面脱衣

- 浴室

- トイレ

- 眺望(海を望みます)

- 外観(駐車スペース)

販売価格 : 1,850万円
| 所在地 | 静岡県伊東市富戸 | 用途地域 | 無指定 |
|---|---|---|---|
| 交通 | 伊豆急行線/伊豆高原駅(約5.7km) | 建ぺい率 | 20% |
| 土地面積 | 333㎡ / 100.73坪 | 容積率 | 60% |
| 地目 | 原野 | その他 法令上の制限 |
自然公園法・宅地造成等規制法・県条例・屋外広告物特別規制区域・盛土・民泊条例他 |
| 建物面積 | 105.48㎡ / 31.9坪 | 設備 | 東京電力・私営水道・個別浄化槽・個別LPG |
| 間取り | 3LDK | 備考 | 分譲地規制有 私道負担面積:約15㎡ 温泉引込可 建物:外壁基礎微小亀裂有、外壁塗装剥離有、内壁傷有他 駐車場2台可 |
| 構造規模 | 木造スレート葺2階建 | ||
| 築年月 | 2002年2月 | ||
| 都市計画 | 非線引 | 取引態様 | 媒介 |








